专为特殊任务设计的车顶天窗
“Optimal”系列钢化玻璃天窗专为探险车和越野房车打造,即使在极端环境下也能保障舒适体验。详细说明与技术参数请下载产品手册。
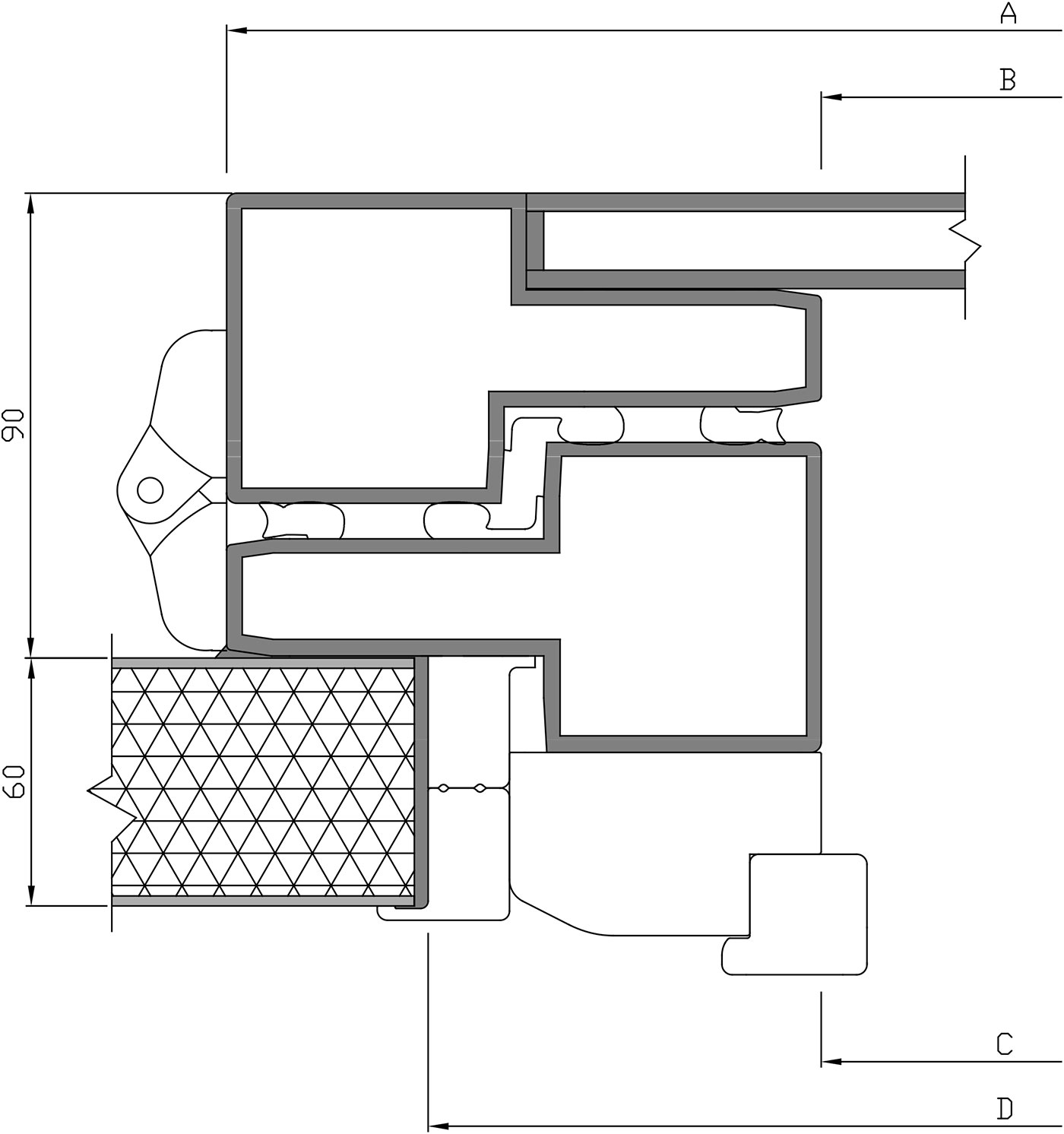
技术参数


开启通风
无级开启,最大开启角度达86度,配有大尺寸窗户。提供舒适的使用体验,可自由通往室外。
玻璃配置
天窗采用双层钢化安全玻璃,确保卓越的隔热与隔音性能,因玻璃层间充有氩气。另可选配新型玻璃,其内侧涂有低辐射涂层,能将红外线与紫外线辐射降至最低。
主要特点
采用数控技术,品质卓越,工艺精湛
氩气填充玻璃与焊接框架构成的“Optimal”系列天窗,提供卓越的隔热与隔音性能
四重密封设计确保出色的气密性
经压力舱强度测试验证,“Optimal”系列天窗完全满足该类型窗户的所有要求。
这一品质经实践验证,并获得客户认可。
“天空才是极限”